FRAUDULENT USE OF A CREDIT CARD Retail Store 1400 Block of Cotton Exchange Millbrook, Alabama Case: MBPD21-0100036 Millbrook Police Department
Photo: clipart-library.com MONTGOMERY— Gov. Kay Ivey has awarded $505,552 to continue a program that assists inmates at seven state prisons
TUESDAY, MARCH 2, 2021 AT 10:15 AM CST – 4:45 PM CST Read Across America Event The Shoppes of Downtown
Pet of the Week – Dorothy Dorothy is a special needs lady, ten-years-old, 50 lbs and worth the “extra.” She
From ADECA MONTGOMERY— Laptops, office furniture, vehicles, generators and even portable paint booths are among the 365 lots of items
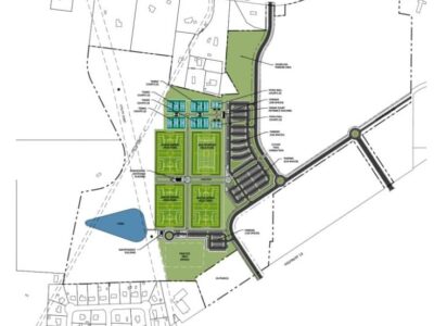
FROM THE ELMORE COUNTY COMMISSION The Seventeen Springs Steering Committee met for their monthly meeting on February 17, 2021. The
BY SARAH STEPHENS ELMORE/AUTAUGA NEWS PHOTOS FROM ED ROBERTSON On Saturday, Elmore County Commissioner Desirea Lewis led a group of
FROM PRATTVILLE AUTAUGA HUMANE SHELTER Our featured pet this week is Champ—really a cutie! Champ is a 3-month-old male Shepherd/Basset
Humane Society of Elmore County News What actually goes on in our Shelter on a daily basis? The public sees
By Gerri Miller EAN Staff Writer A ceremony held between the Junior Varsity and Varsity Stanhope Elmore High School baseball










