FROM THE ELMORE COUNTY COMMISSION
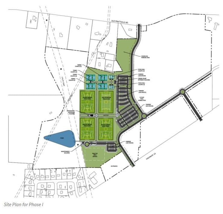
The Seventeen Springs Steering Committee met for their monthly meeting on February 17, 2021. The committee approved the site plan as well as the architectural concepts for buildings included in Phase I. The project now moves into the finalization of plans to facilitate bidding in spring 2021.
For questions or additional information related to the Seventeen Springs project, please contact Elmore County COO Richie Beyer at [email protected].
Here is a link to an article from July 2020 that explains the announcement, phases and expectations for the facility. https://elmoreautauganews.com/2020/07/22/the-fields-at-17-springs-will-bring-a-sports-multiplex-to-millbrook-with-benefits-for-elmore-county-as-well-officials-announce/








