FROM ALABAMA LAW ENFORCEMENT AGENCY MONTGOMERY — Looking for quality used vehicles? The Alabama Law Enforcement Agency’s (ALEA) surplus inventory
BY SARAH STEPHENS ELMORE/AUTAUGA NEWS Photo courtesy of Elmore County Sheriff’s Office. Two very young children who wondered into a
BY SARAH STEPHENS ELMORE/AUTAUGA NEWS If you are one of the many citizens who have complained about poorly maintained areas,
BURGLARY Highway 82 Market & Deli Posey Crossroad Convenient Store Autauga County, Alabama Case: ACSO21-0915B Autauga County Sheriff’s Office 334-361-2500
SHOPLIFTING Retail Store 1400 Block of Cotton Exchange Prattville, Alabama Case: PPD21-0915A Prattville Police Department 334-595-0252 FROM CENTRAL ALABAMA CRIMESTOPPERS
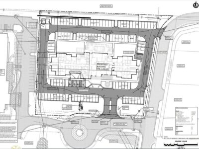
BY SARAH STEPHENS ELMORE/AUTAUGA NEWS TOP PHOTO: The Site Plan for TownePlace Suites by Marriott was approved Tuesday night by
From Don Ouellette, CIO Ouellette & Associates, Inc. Annetta Register is the Long-Lewis Hometown Hero of the Month for Long-Lewis







