Categories
1 – Top Center 5 Blocks
(8,041)
2 – Top Right 6 Blocks
(958)
Elmore County Public Schools
(103)
Home
(100)
HSEC Pet of the week
(54)
News
(10,271)
News Center 5 Blocks
(1,148)
News Left 3 Blocks
(266)
PAHS Prattville Autauga Humane Shelter
(58)
Sports
(486)
Sports – Center 3 blocks
(483)
Sports – Right 3 Blocks
(9)
Most Popular
Top Stories
News
Sports
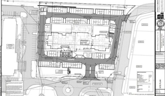
The Fields at 17 Springs in Millbrook to Begin Construction
Home
The Fields at 17 Springs in Millbrook to Begin Construction
1 - Top Center 5 Blocks
Millbrook Council: 17 Springs Project Construction Approved; Site Plan Approved for New Hotel
Sarah Stephens
September 15, 2021
BY SARAH STEPHENS ELMORE/AUTAUGA NEWS TOP PHOTO: The Site Plan for TownePlace Suites by Marriott was approved Tuesday night by