News
Pictured (L-R): PHS Principal Daniel Farris, Taylor Gloystein, and Superintendent Timothy Tidmore FROM
FROM THE PRATTVILLE POLICE DEPARTMENT Teto Jermaine Williams, 34, of Wetumpka now faces
FROM ALABAMA LAW ENFORCEMENT AGENCY MONTGOMERY — Looking for quality used vehicles? The
BY SARAH STEPHENS ELMORE/AUTAUGA NEWS Photo courtesy of Elmore County Sheriff’s Office. Two
BY SARAH STEPHENS ELMORE/AUTAUGA NEWS If you are one of the many citizens
BURGLARY Highway 82 Market & Deli Posey Crossroad Convenient Store Autauga County, Alabama
SHOPLIFTING Retail Store 1400 Block of Cotton Exchange Prattville, Alabama Case: PPD21-0915A Prattville
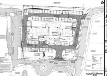
BY SARAH STEPHENS ELMORE/AUTAUGA NEWS TOP PHOTO: The Site Plan for TownePlace Suites
From Don Ouellette, CIO Ouellette & Associates, Inc. Annetta Register is the Long-Lewis
By Gerri Miller Staff Writer The Elmore County Commission tackled a full agenda Monday night










