
BY SARAH STEPHENS
ELMORE/AUTAUGA NEWS
The Prattville City Council took “a monumental step” last night through two resolutions to move construction forward on The Mill apartments in the historic Daniel Pratt Gin Factory project. There will reportedly be 147 luxury loft style apartments within the five buildings of the property. Envolve Communities is in charge of the development.
Matt Holtzcher spoke to the council regarding Resolutions 10 and 11 on the agenda Tuesday night. He is the Chairman of the Historic Preservation Redevelopment Authority (HPRA).
The HPRA requested an allocation from the City of Prattville to purchase the Levee referenced in the Amended and Restated Project, Development and Cooperation Agreement. This was a budgeted expense in the Community Initiatives Department.
“As the Chairman of the Historic Preservation Redevelopment Authority, I am pleased to be here to ask you for your support tonight in finalizing the development agreement for the construction of and repurposing of the Daniel Pratt Gin Shop Historic buildings and properties. The development agreement is between the City of Prattville, HPRA and Pratt Cotton Gin Mill LLC, or as we know it, Evolve. This has been a monumental undertaking. We would not be here today without a viable public/private partnership. Together we have overcome hurdles, not the least of are price increases and deterioration of historic buildings. On behalf of HPRA I would like to personally thank Mayor Bill Gillespie, Council President Jerry Starnes and each individual councilor because this could not have been done without your input and help.”
He thanked all involved in the process including city, Evolve officials and the HPRA attorney.
“All approvals are secured including city, state and federal agencies with construction loans ready to close this week. With your approval tonight, this project will become reality,” he said.
The two resolutions approved include Resolution 10 which reads, “To authorize the Mayor to enter into an amended and restated project, development and cooperation agreement between the City of Prattville, HPRA and Pratt Cotton Gin Mill LLC.”
Resolution 11 reads, “To authorize the release of allocation funding to the Historic Prattville Redevelopment Authority for the Levee Purchase referenced in the amended and restated project, development and cooperation agreement” (between all parties). It continues that $500,000 will be given to the HPRA for the purchase of the levee.

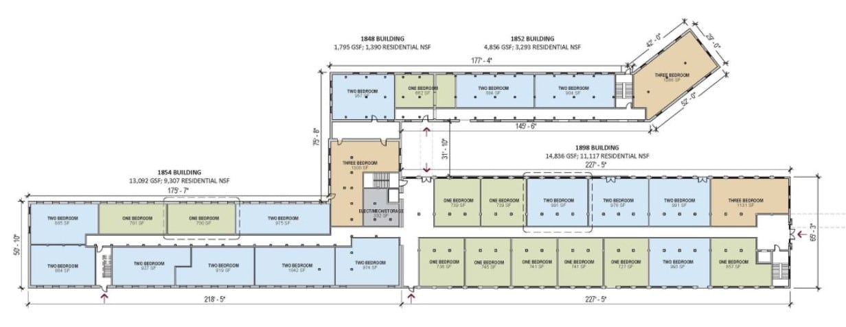
From Chambless-King Architects, regarding the plans for The Mill project:
The Mill – Artists Renderings from Chambless King Architects
“The 147-unit apartment project is an adaptive reuse of seven historic brick structures built between 1848 and 1957, as well as several ancillary steel structures. The space is aimed at supporting and expanding the economic growth of Prattville’s revitalizing downtown. Complex amenities include a clubhouse, fitness center, business center and community room, event space, pavilions, courtyards, and green space.
Restoring and repurposing an 1850s mill into a modern apartment complex required innovative financing, including floodplain mitigation through the ADECA Office of Water Resources. Chambless King Architects navigated the complex regulatory system that evolved from the capital stack to ensure the final design met all requirements.
The design was crafted in close collaboration with historic consultants and the National Parks Service to preserve the historic integrity of the site. The design also strategically utilized existing steel structures to create visually dynamic exterior amenities, including covered parking and pavilions.
The over 150-year span of original construction is illustrated through an evolution of design techniques and architectural styles. To maintain historic conditions, the interior design kept much of the original structure exposed. The development now features over 70 unique floor plans that offer a wide range of views to the creek, dam, downtown, or public spaces.”


In other Prattville City Council business Tuesday night:
*The Council approved the re-appointment of Kim Lamar Miers and Stacey Lewis to the Autauga -Prattville Public Library Board of Trustees.
*Set a public hearing to declare stagnant water and keeping garbage and rubbish at 1105 Deramus Court, Prattville AL to be unsafe and a public nuisance. The public hearing will be held at 6 p.m. on Dec. 21 in Prattville City Hall. The Prattville Police Department Code Enforcement Officer has inspected the property and determined the existence of stagnant water and garbage/rubbish. Autauga County tacx records list the property owner as Taylor Danny C and Kathy L.
The Code Enforcement Officer sent notice to the owner of the property in writing May 21, 2021 to correct, remedy or remove the conditions within 10 days. However, officials said the owner has not done so. As such the city could move forward to make the improvements and charge the expenses incurred to the owner. Any parties interested in this property should plan to attend the Dec. 21 meeting.
*Authorized the Mayor to enter into a hosting agreement and to release funds for the purchase of cemetery mapping and recordkeeping software from Coyote Creek Digital dba Cemify for the executive department at a net cost not to exceed $14,649.
*Authorized the Mayor to enter into an agreement with Civil Southeast LLC for engineering services for ALDOT resurfacing project on Lower Kingston Road from 4th Street to Prattville City Limits for the engineering department at a cost not to exceed $64,881.
*Authorized the Mayor to enter into an agreement with Civil Southeast LLC for engineering services for ALDOT resurfacing project on Doster Road from Marlette Drive to SR-3 (US-31) for the engineering department at a cost not to exceed $82,920. (Net cost to City not to exceed $15,584.)
*Amended the FY 2020 budget and authorized the Mayor to enter into an agreement with Goodwyn Mills Cawood LLC for engineering services for Cobbs Ford Road Turn Lane extension and sidewalk improvements between Silver Hills Drive and McQueen Smith Road for the engineering department at a net cost not to exceed $62,950.
*Supported the Elmore County Commission in their proposed local legislation regarding the release of restrictions on the one percent special district tax.
*Supported the Inteplast Engineered Films Prattville expansion project and approved the tax abatement application for the purpose of economic development.
*Authorized the Mayor to enter into an agreement with Alabama State University Center for Leadership and Public Policy for Redistricting Project at a net cost not to exceed $5,000.
Upcoming meetings:
HPRA Meeting is today at 5 p.m. in the human resources conference room at Prattville City Hall.
Industrial Development Board Meeting is Thursday, Nov. 18 at the Prattville Area Chamber of Commerce.
Planning Commission will meet Thursday, Nov. 18 at 3 p.m. in City Council chambers at City Hall.
Bid No. 021-007 New Street Department Facility is Monday, Nov. 22 at 10 a.m. in Council Chambers.
The next Prattville City Council meeting is scheduled for Tuesday, Dec. 7, 2021 at 6 p.m.





