FROM CHRISTOPHER HALL From time to time while driving, you may have noticed amateur radio distinctive license plates on passenger
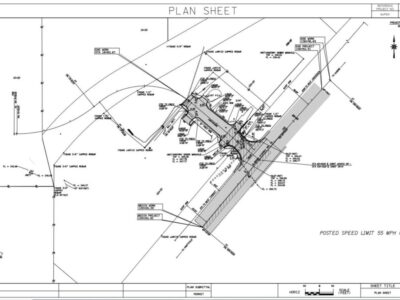
BY SARAH STEPHENS GRAPHICS COURTESY OF STUART PETERS, LANDMARK ENGINEERING Shown here are two photos from the full public bid
From Elmore Fire/Rescue Elmore Fire Department recently had the opportunity to utilize the Alabama Fire College Confined Space Mobile Training
STATEMENT FROM DUSTY DEVAUGHN, USA ACADEMY ORGANIZER MONTGOMERY, AL – USA Academy Founder and Athletics Director Dustin DeVaughn today finalized
By Andrew Edwards Staff Writer On Tuesday, February 26, members of the Old Kingston Historical Cemetery Committee were presented a
Barbara W. Simpson Prattville Cultural Arts and Special Events Prattville’s Way Off Broadway Theatre is excited to announce auditions for
“Blake Percival is one of the most important whistleblowers in recent history,” Attorney Larry Golston says. “We as a country
FROM ELIZABETH FAWCETT RAFFETTO HERMAN STRATEGIC COMMUNICATIONS Prattville High School is one of 30 schools across the country selected to
BY SARAH STEPHENS, OWNER/EDITOR EAN Photo is a mugshot of Charles Bowne, 39, from an arrest in December of last
By Andrew Edwards Staff Writer Barring a setback, Prattville will be getting a charter school located on the Prattville side











